Villa singola in vendita

Treviso, Via Fonderia - Santa Maria Del Rovere
€ 360.000
5 locali 5 locali
240 Mq 240 Mq
2 bagni 2 bagni

Villa singola in vendita

Treviso, Via Fonderia - Santa Maria Del Rovere

Descrizione annuncio

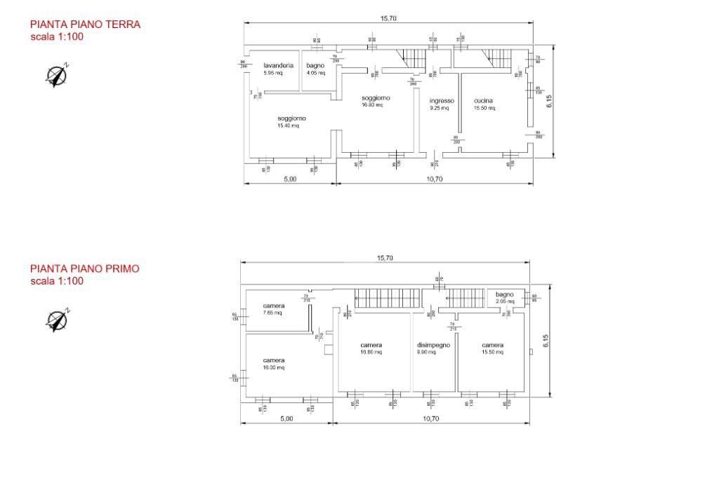
Nel cuore di Santa Maria del Rovere, a Treviso, si propone in esclusiva una villa singola d'epoca, costruita nel 1900. Questa residenza si sviluppa su due livelli ed è facilmente frazionabile per poter eventualmente ricavare due abitazioni.
Attualmente l'immobile è così composto: al piano terra, attraverso ampio ingresso, si accede alla zona giorna composta da doppio soggiorno di 17 e 15 mq con cucina separata di 15,5 mq e un bagno con lavanderia.
Al primo piano troviamo la zona notte, accessibile tramite due scale interne distinte e suddivisa in due ale.
Un'ala della casa è composta da uno studio di 10 mq, una camera matrimoniale e un bagno di servizio.
L'altra ala della casa è composta invece da due camere matrimoniali e una singola.
All'esterno, un giardino di circa 600 mq circonda la proprietà, creando un'oasi di tranquillità e privacy. Vi è inoltre una parte edificabile, ideale per ricavare anche una piscina.
Questa dimora rappresenta un'opportunità unica per chi desidera vivere in un contesto storico, senza rinunciare agli spazi e ai comfort moderni.
L'ultimo riammodernamento della casa è stato effettuato intorno gli anni '60.

Mostra tutto

Nelle vicinanze

Trasporto pubblico Trasporto pubblico
stazione di Lancenigo
stazione di Lancenigo
2,9 Km
stazione di Treviso Centrale
stazione di Treviso Centrale
2,9 Km
Trasporto pubblico
180 m
Bivio Strada Ovest
Bivio Strada Ovest
910 m
Ricariche auto elettriche Ricariche auto elettriche
Biosapori S.r.l.
660 m
LIDL Treviso
720 m
Lancenigo Fontane | EnelX
1,0 Km
DBA Progetti SpA | EnelX
1,6 Km
MOM - Via Toniolo
2,5 Km
Scuole Scuole
Scuola Parucchieri Estetisti
240 m
Scuole
400 m
Scuola dell'infanzia Carmen Frova
450 m
Ic Martini
580 m
ITIS "Enrico Fermi"
910 m
Farmacia Farmacia
Farmacia
470 m
Comunale N.7 G. Marconi
1,4 Km
Farmacia Callegari s.n.c.
1,8 Km
Farmacia Selvana
2,0 Km
Farmacia Sant'Agostino
2,0 Km
Ospedali Ospedali
Ospedale generale di zona San Camillo
1,2 Km
Centro di Medicina
1,5 Km
Ospedale Ca' Foncello
2,9 Km
Madonnina
2,9 Km
Pronto Soccorso Ospedale "Ca' Foncello"
3,0 Km
Supermercati Supermercati
Market
220 m
Altromercato
630 m
Biosapori
680 m
Supermercati Aldi
690 m
LIDL
710 m
Negozi Negozi
Panificio Pasticceria Casellato
170 m
Negozi
190 m
Sorelle Ramonda Outlet
480 m
Acqua & Sapone
2,1 Km
Liu Jo
2,2 Km
Bar Bar
Bar
1,0 Km
Il Regno di Gambrinus
1,1 Km
Bar Ganassi
1,3 Km
Vecio Portego
2,0 Km
Osteria Muscoli
2,1 Km
Ristoranti Ristoranti
Pizzeria "Da Carla"
160 m
Osteria al Norge
830 m
Da Pino
920 m
Ristoranti
1,1 Km
Galloway
1,2 Km
Mostra tutto

Caratteristiche

Rif.:
61154332
Piano:
1 di 2 (Piano su più livelli)
Posti auto:
2
Camere da letto:
4
Arredamento:
Parziale
Condizionamento:
Assente
Mostra tutto
Prezzo Prezzo
€ 360.000
Rata mutuo Rata mutuo
€ 1.709 / mese
Spese annue Spese annue
€ 0
Proponi il tuo prezzoProponi il tuo prezzo
Immobile valutato con T·Valuta

Classe Energetica

G
G
G
G
G
G
G
G
G
EP globale non rinnovabile:
421.61 kW h/m² anno
EP globale rinnovabile:
0.00 kW h/m² anno
Anno di costruzione:
1900
Riscaldamento:
Autonomo
Tipo impianto:
A radiatori
Tipo alimentazione:
Metano

Ti interessa visionare l'immobile?

Fissa un appuntamento  Fissa un appuntamento

Richiedi informazioni

Clicca su Leggi per aprire l'informativa
* Questi campi sono obbligatori

Calcola il tuo mutuo

Semplice e senza impegno
Anticipo

( % )
Mutuo

( % )

pochi semplici passi

inserisci i tuoi dati
Questionario completato
Grazie per aver richiesto un appuntamento senza impegno con un nostro Consulente del Credito e Assicurativo.

Hai inserito correttamente tutti i dati necessari e a breve riceverai una e-mail con un link da convalidare per inviare i tuoi dati.
Affiliato
Immobiliare4 Sas
Via Giacomo Zanella, 4B 31100 Treviso (TV)

Il nostro staff


  • Emanuele Disa
    Collaboratore

  • Dejan Krcmar
    Affiliato

  • Agnese Liduina Scarpa
    Coordinatrice

  • Riccardo Stolfo
    Collaboratore

  • Alessandro Zorz
    Collaboratore
Via Giacomo Zanella, 4B 31100 Treviso (TV)
Zona: Treviso Santa Maria del Rovere-Stadio-Fiera-Selvana-San Pelaio-Via Montello
Mostra su mappa
Affiliato
Immobiliare4 Sas
Via Giacomo Zanella, 4B 31100 Treviso (TV)

2026 Tecnocasa Franchising S.p.A. - P. IVA 08365160152 - Via Monte Bianco 60/A 20089 Rozzano (MI). Ogni agenzia ha un proprio titolare ed è autonoma. Privacy policy | Policy utilizzo | Cookie policy